Mehr anzeigen zum Thema Außen-Provision
Außen-Provision
2,97 % Käuferprovision vom notariell beurkundeten Kaufpreis inklusive gesetzl.MwSt.
Mehr anzeigen zum Thema Beschreibung
Beschreibung
*** Kaufpreis VHB 219.000 € ***
Geräumiges & freistehendes EFH in schöner, zentraler Wohnlage, im Ortsteil Saterland-Strücklingen.
Ideal für die kleine Familie oder auch Leute, die einen kleinen, pflegeleichten Garten lieben.
Die Ausstattung des Hauses ist hell & freundlich, sowie baujahrtypisch.
Vom großzügigen Wohn – & Essbereich gelangt man auf die Terrasse und den Garten, mit schönem Teich.
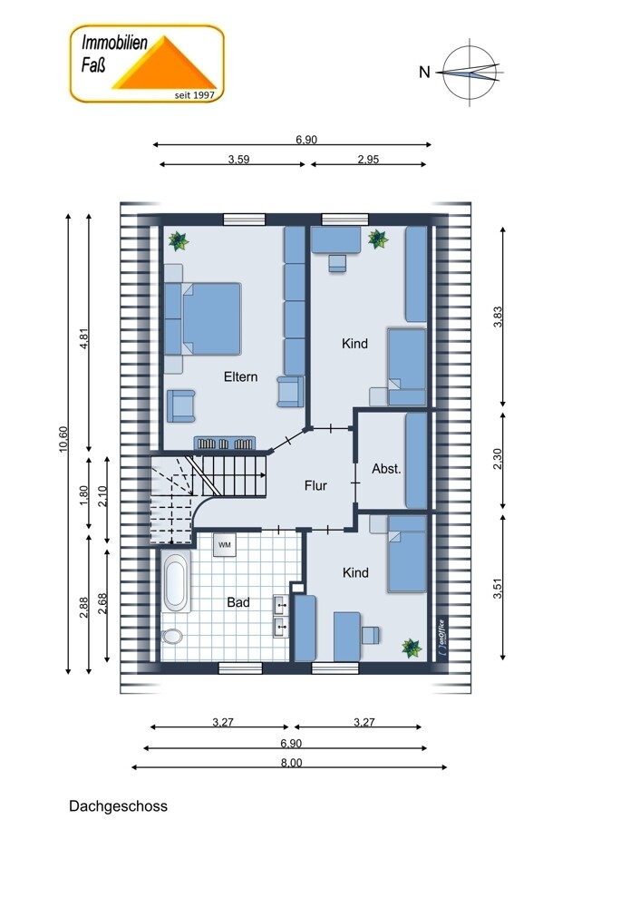
Im Dachgeschoss befinden sich die 3 Schlafzimmer, sowie das Badezimmer mit Wanne und Dusche.
* Raumaufteilung:
ERDGESCHOSS:
Diele, Gäste-WC, Wohn- & Esszimmer, Küche, Flur. HWR, Heizungsraum.
DACHGESCHOSS:
Flur, BAD, kl. Abstellraum, Elternschlafzimmer, Kind I, Kind II.
Spitzboden . erreichbar über Bodeneinschubtreppe.
* Energieausweis: Verbrauchsausweis vom 30.10.2024, Effiziensklasse: E, 144,6 kWh/(m²a), Baujahr Haus 1994, Energieträger Gas, Gasheizung Anlagentechnik 1994, Ausweis gültig bis 29.10.2034.
Geräumiges & freistehendes EFH in schöner, zentraler Wohnlage, im Ortsteil Saterland-Strücklingen.
Ideal für die kleine Familie oder auch Leute, die einen kleinen, pflegeleichten Garten lieben.
Die Ausstattung des Hauses ist hell & freundlich, sowie baujahrtypisch.
Vom großzügigen Wohn – & Essbereich gelangt man auf die Terrasse und den Garten, mit schönem Teich.
Im Dachgeschoss befinden sich die 3 Schlafzimmer, sowie das Badezimmer mit Wanne und Dusche.
* Raumaufteilung:
ERDGESCHOSS:
Diele, Gäste-WC, Wohn- & Esszimmer, Küche, Flur. HWR, Heizungsraum.
DACHGESCHOSS:
Flur, BAD, kl. Abstellraum, Elternschlafzimmer, Kind I, Kind II.
Spitzboden . erreichbar über Bodeneinschubtreppe.
* Energieausweis: Verbrauchsausweis vom 30.10.2024, Effiziensklasse: E, 144,6 kWh/(m²a), Baujahr Haus 1994, Energieträger Gas, Gasheizung Anlagentechnik 1994, Ausweis gültig bis 29.10.2034.
Mehr anzeigen zum Thema Ausstattung Beschreibung
Ausstattung Beschreibung
– freistehendes Einfamilienhaus (EFH)
– Siedlungslage, ca. 600 Meter zum nächsten Supermarkt und Bäcker
– Carport mit Geräteraum
– Teich
– Terrasse
– Zaun
– Garten (pflegeleichtes Grundstück zur Größe von ca. 381 m², eigene Parzelle)
– 4 Zimmer, Küche, Bad.
– h e l l e Ausstattung aus dem Baujahr
– Baujahr laut Bauantrag u. Genehmigung 1993
– Hohlschichtmauerwerk
– Betondecke EG , sowie zwischen EG und DG
– Rollläden (bis auf Dachflächenfenster, Gäste-WC, HWR)
– Kunststoff – Iso – Fenster
– GAS – Heizung (Buderus 1994. Sowie ca.120 Liter Warmwasser-Speicher Einbau 2020)
– Heizkörper, keine Fußbodenheizung
– Gäste-WC im Erdgeschoss
– massive Treppe zum Dachgeschoss (DG)
– BAD mit Dusche und Wanne im DG
– inklusive EBK (Einbauküche)
– Spitzboden, erreichbar über eine Bodeneinschubtreppe
– Wohnflächenangabe gemäß DIN 283 (gemäß Bauunterlage!)
– Internetrecherche (unverbindlich) : liegt laut EWE in einem Glasfaserausbaugebiet
– TV: SAT
– Die Grundstückszufahrt ist über ein grundbuchlich eingetragenes Wegerecht gegeben.
Beschreibung und Informationen auf Anfrage.
– Siedlungslage, ca. 600 Meter zum nächsten Supermarkt und Bäcker
– Carport mit Geräteraum
– Teich
– Terrasse
– Zaun
– Garten (pflegeleichtes Grundstück zur Größe von ca. 381 m², eigene Parzelle)
– 4 Zimmer, Küche, Bad.
– h e l l e Ausstattung aus dem Baujahr
– Baujahr laut Bauantrag u. Genehmigung 1993
– Hohlschichtmauerwerk
– Betondecke EG , sowie zwischen EG und DG
– Rollläden (bis auf Dachflächenfenster, Gäste-WC, HWR)
– Kunststoff – Iso – Fenster
– GAS – Heizung (Buderus 1994. Sowie ca.120 Liter Warmwasser-Speicher Einbau 2020)
– Heizkörper, keine Fußbodenheizung
– Gäste-WC im Erdgeschoss
– massive Treppe zum Dachgeschoss (DG)
– BAD mit Dusche und Wanne im DG
– inklusive EBK (Einbauküche)
– Spitzboden, erreichbar über eine Bodeneinschubtreppe
– Wohnflächenangabe gemäß DIN 283 (gemäß Bauunterlage!)
– Internetrecherche (unverbindlich) : liegt laut EWE in einem Glasfaserausbaugebiet
– TV: SAT
– Die Grundstückszufahrt ist über ein grundbuchlich eingetragenes Wegerecht gegeben.
Beschreibung und Informationen auf Anfrage.
Mehr anzeigen zum Thema Lage
Lage
Siedlungslage im Saterland, Ortsteil Strücklingen, zentrumsnahe gelegen. Die nächsten Orte Barßel, Ramsloh und Ostrhauderfehn sind schnell mit dem Auto erreichbar. Ein Supermarkt ist fußläufig entfernt.
Ebenfalls ist eine gute Autobahnanbindung vorhanden. (A28, A31, B72).
Nahe der Nordseeküste (z. B. Bensersiel ca. 83 km) und nahe der niederländischen Grenze ca. 50 km.
Einkaufsmöglichkeiten sind im Ort, sowie in den Nachbarorten Barßel, Ostrhauderfehn und Saterland ausreichend vorhanden.
Die Städte Westerstede, Oldenburg und Leer sind mit Krankenhäusern ausgestattet.
Ebenfalls ist eine gute Autobahnanbindung vorhanden. (A28, A31, B72).
Nahe der Nordseeküste (z. B. Bensersiel ca. 83 km) und nahe der niederländischen Grenze ca. 50 km.
Einkaufsmöglichkeiten sind im Ort, sowie in den Nachbarorten Barßel, Ostrhauderfehn und Saterland ausreichend vorhanden.
Die Städte Westerstede, Oldenburg und Leer sind mit Krankenhäusern ausgestattet.
Mehr anzeigen zum Thema Sonstige Angaben
Sonstige Angaben
Ein zwischenzeitlicher Verkauf bleibt vorbehalten.
Baujahr, Flächen und Wfl.- u. Größenangaben sind ca. Angaben.
Angerechnete Flächen für die Wohnfläche gemäß DIN 283, vorliegende Bauunterlage.
Maklerprovision für Verkäufer und Käufer:
Verkäufer: 2,97 % Verkäuferprovision vom notariell beurkundeten Kaufpreis inklusive gesetzl. MwSt., verdient und fällig mit notarieller Beurkundung.
Käufer: 2,97 % Käuferprovision vom notariell beurkundeten Kaufpreises inklusive gesetzl. MwSt., verdient und fällig mit notarieller Beurkundung.
** Die verwendeten Fotos sind urheberrechtlich geschützt und dürfen nicht kopiert werden.
Baujahr, Flächen und Wfl.- u. Größenangaben sind ca. Angaben.
Angerechnete Flächen für die Wohnfläche gemäß DIN 283, vorliegende Bauunterlage.
Maklerprovision für Verkäufer und Käufer:
Verkäufer: 2,97 % Verkäuferprovision vom notariell beurkundeten Kaufpreis inklusive gesetzl. MwSt., verdient und fällig mit notarieller Beurkundung.
Käufer: 2,97 % Käuferprovision vom notariell beurkundeten Kaufpreises inklusive gesetzl. MwSt., verdient und fällig mit notarieller Beurkundung.
** Die verwendeten Fotos sind urheberrechtlich geschützt und dürfen nicht kopiert werden.
Mehr anzeigen zum Thema Sonstige Angaben
Energieausweis
A+
< 30
A
30 – 50
B
50 – 75
C
75 – 100
D
100 – 130
E
130 – 160
F
160 – 200
G
200 – 250
H
> 250
- Nutzungsart
- Wohnen
- Baujahr lt. Energieausweis
- 1994
- Endenergieverbrauch
- 144,6 kWh/(m²a)
- Energieausweis
- Verbrauchsausweis
- Energieausweis gültig bis
- 29.10.2034
- Energieeffizienzklasse
- E
- wesentlicher Energieträger
- Gas
Ihre Ansprechpartnerin
Frau Frauke Faß (Dipl.-Kffr.)
Immobilien Frauke Faß
- Tel.:
- 0495282379
- E-Mail:
- info@immo-ostfriesland.de
Schulstraße 131
26842 Ostrhauderfehn