Mehr anzeigen zum Thema Beschreibung Beschreibung
Ebenerdiiges Wohnen !
Dieser gepflegte Bungalow im Ortsteil Collinghorst (Sieglungslage) bietet mit seinem liebevoll angelegten Garten ein gemütliches Zuhause, das auch perfekt für die kleine Familie geeignet ist.
Das Grundstück ist vollständig eingezäunt, was für zusätzliche Privatsphäre und Sicherheit sorgt.
Ein absolutes Highlight ist der großzügige Sommergarten. Dieser ist sowohl vom großzügigen Wohnzimmer, der modernen Küche, als auch dem Hauswirtschaftsraum zugänglich. Die Glaselemente des Sommergartens (geschlossene Terrasse, unbeheizt) lassen sich vollständig aufschieben und bieten dadurch einen direkten Zugang zum Garten.
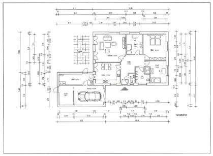
*** Raumauteilung: ***
Erdgeschoss: Diele, Küche mit Zugang zum Sommergarten, HWR mit Zugang zum Sommergarten u. zur Garage, Wohnen, Büro/Kind II, Schlafen/Eltern, Gäste/Kind I, Bad, Gäste WC. Garage mit Geräteraum u. Zugang zum Garten.
Energieausweis: Verbrauchsausweis vom 31.01.2016, Effiziensklasse B, Endenergieverbrauch 72,6 kwh/(m²a), Energieträger Gas, Gastherme lt. Ausweis 2010. Baujahr Haus lt. Ausweis 2010. Gültig bis 30.01.2026.
Dieser gepflegte Bungalow im Ortsteil Collinghorst (Sieglungslage) bietet mit seinem liebevoll angelegten Garten ein gemütliches Zuhause, das auch perfekt für die kleine Familie geeignet ist.
Das Grundstück ist vollständig eingezäunt, was für zusätzliche Privatsphäre und Sicherheit sorgt.
Ein absolutes Highlight ist der großzügige Sommergarten. Dieser ist sowohl vom großzügigen Wohnzimmer, der modernen Küche, als auch dem Hauswirtschaftsraum zugänglich. Die Glaselemente des Sommergartens (geschlossene Terrasse, unbeheizt) lassen sich vollständig aufschieben und bieten dadurch einen direkten Zugang zum Garten.
*** Raumauteilung: ***
Erdgeschoss: Diele, Küche mit Zugang zum Sommergarten, HWR mit Zugang zum Sommergarten u. zur Garage, Wohnen, Büro/Kind II, Schlafen/Eltern, Gäste/Kind I, Bad, Gäste WC. Garage mit Geräteraum u. Zugang zum Garten.
Energieausweis: Verbrauchsausweis vom 31.01.2016, Effiziensklasse B, Endenergieverbrauch 72,6 kwh/(m²a), Energieträger Gas, Gastherme lt. Ausweis 2010. Baujahr Haus lt. Ausweis 2010. Gültig bis 30.01.2026.
Mehr anzeigen zum Thema Ausstattung Beschreibung Ausstattung Beschreibung
– Baubeginn 2009, Fertigstellung 2010
– GAS Brennwert mit Warmwasser-Solar
– teils Fußbodenerwärmung
– weiße Kunststoff ISO Fenster, 3-fach Verglasung
– elektrische Rollläden (Wohnen u. Küche)
– Fußböden: größtenteils Fliesen. Schlafzimmer, Büro und Gästezimmer: Kork
– Moderne, weiße Einbauküche (EBK) im Preis enthalten
– Bad mit begehbarer Dusche
– Gäste – WC
– Sommergarten mit Zugang zum Garten (Glaselemente können geöffnet werden)
– eingezäunter Garten
– Mähroboter
– Garage mit elektrischem Sektionaltor und Zugang zum HWR, sowie Werkstattraum mit Zugang zum Garten
– Deckenspots außen
– ohne Markise und ohne Sauna
– Dachboden (nicht ausgebaut) erreichbar über Bodeneinschubtreppe
– Internet: Glasfaser verfügbar (lt. unverbindlicher Internetrecherche)
– GAS Brennwert mit Warmwasser-Solar
– teils Fußbodenerwärmung
– weiße Kunststoff ISO Fenster, 3-fach Verglasung
– elektrische Rollläden (Wohnen u. Küche)
– Fußböden: größtenteils Fliesen. Schlafzimmer, Büro und Gästezimmer: Kork
– Moderne, weiße Einbauküche (EBK) im Preis enthalten
– Bad mit begehbarer Dusche
– Gäste – WC
– Sommergarten mit Zugang zum Garten (Glaselemente können geöffnet werden)
– eingezäunter Garten
– Mähroboter
– Garage mit elektrischem Sektionaltor und Zugang zum HWR, sowie Werkstattraum mit Zugang zum Garten
– Deckenspots außen
– ohne Markise und ohne Sauna
– Dachboden (nicht ausgebaut) erreichbar über Bodeneinschubtreppe
– Internet: Glasfaser verfügbar (lt. unverbindlicher Internetrecherche)
Mehr anzeigen zum Thema Lage Lage
Collinghorst – beliebter Ortsteil der ostfriesischen Gemeinde Rhauderfehn, Siedlungslage.
Die Infrastruktur in Collinghorst ist eher klein, es gibt jedoch einen Supermarkt mit Bäckerei, zwei Imbissen, ein kleines Bekleidungsgeschäft, eine Grundschule, einen Kindergarten, eine Bank und einen Sportverein. Ebenfalls verfügt Collinghorst über einen wunderschönen Angelsee (Vereinsgewässer). All diese Einrichtungen sind quasi fußläufig oder mit dem Fahrrad erreichbar.
Für weitere Einkaufsmöglichkeiten und Dienstleistungen müssen die Bewohner in die umliegenden Orte wie z. B. Westrhauderfehn, Westoverledingen oder Leer fahren.
Collinghorst ist auch ein beliebter Wohnort für Pendler, die in den umliegenden Städten, wie Leer oder Papenburg arbeiten.
Die gute Verkehrsanbindung (B438, B401, B70, B72, A28, A31) ermöglicht eine schnelle Erreichbarkeit der größeren Städte in der Region.
Die Stadt Leer ist ca. 11 km und die Stadt Papenburg ca. 16 km entfernt.
Auch Bushaltestellen sind in der Nähe vorhanden.
Insgesamt ist Collinghorst ein idyllischer Ort mit einer ländlichen Atmosphäre und einer guten Anbindung an die umliegenden Städte.
Die Infrastruktur in Collinghorst ist eher klein, es gibt jedoch einen Supermarkt mit Bäckerei, zwei Imbissen, ein kleines Bekleidungsgeschäft, eine Grundschule, einen Kindergarten, eine Bank und einen Sportverein. Ebenfalls verfügt Collinghorst über einen wunderschönen Angelsee (Vereinsgewässer). All diese Einrichtungen sind quasi fußläufig oder mit dem Fahrrad erreichbar.
Für weitere Einkaufsmöglichkeiten und Dienstleistungen müssen die Bewohner in die umliegenden Orte wie z. B. Westrhauderfehn, Westoverledingen oder Leer fahren.
Collinghorst ist auch ein beliebter Wohnort für Pendler, die in den umliegenden Städten, wie Leer oder Papenburg arbeiten.
Die gute Verkehrsanbindung (B438, B401, B70, B72, A28, A31) ermöglicht eine schnelle Erreichbarkeit der größeren Städte in der Region.
Die Stadt Leer ist ca. 11 km und die Stadt Papenburg ca. 16 km entfernt.
Auch Bushaltestellen sind in der Nähe vorhanden.
Insgesamt ist Collinghorst ein idyllischer Ort mit einer ländlichen Atmosphäre und einer guten Anbindung an die umliegenden Städte.
Mehr anzeigen zum Thema Sonstige Angaben Sonstige Angaben
Unsere Angebote erfolgen gemäß der uns vom Auftraggeber erteilten Auskünfte; sie sind freibleibend und unverbindlich.
Alle Objektangaben und erteilten Objektinformationen erfolgen ohne Gewähr für die Richtigkeit ! Ein Irrtum bleibt vorbehalten !
– Ein zwischenzeitlicher Verkauf bleibt vorbehalten. –
* Baujahr, Flächen und Größenangaben sind ca. Angaben und erfolgen ohne Gewähr für die Richtigkeit.
** Wohnflächenangabe / Aufmaß gemäß II. Berechnungsverordnung. Sommergarten nicht in der Wohnfläche enthalten.
*** Zeichnung, Flächenangaben und Ansichten wurden uns vom Auftraggeber zur Verfügung gestellt.
**** Maklerprovision für Verkäufer und Käufer (paritätisch) ***
Käufer: 2,38 % Käuferprovision vom notariell beurkundeten Kaufpreis inkl. gesetzl. MwSt., verdient und fällig mit notarieller Beurkundung.
Verkäufer: 2,38 % Verkäuferprovision vom notariell beurkundeten Kaufpreis inkl. gesetzl. MwSt., verdient und fällig mit notarieller Beurkundung.
Die verwendeten Fotos sind urheberrechtlich geschützt und dürfen nicht kopiert werden.
Alle Objektangaben und erteilten Objektinformationen erfolgen ohne Gewähr für die Richtigkeit ! Ein Irrtum bleibt vorbehalten !
– Ein zwischenzeitlicher Verkauf bleibt vorbehalten. –
* Baujahr, Flächen und Größenangaben sind ca. Angaben und erfolgen ohne Gewähr für die Richtigkeit.
** Wohnflächenangabe / Aufmaß gemäß II. Berechnungsverordnung. Sommergarten nicht in der Wohnfläche enthalten.
*** Zeichnung, Flächenangaben und Ansichten wurden uns vom Auftraggeber zur Verfügung gestellt.
**** Maklerprovision für Verkäufer und Käufer (paritätisch) ***
Käufer: 2,38 % Käuferprovision vom notariell beurkundeten Kaufpreis inkl. gesetzl. MwSt., verdient und fällig mit notarieller Beurkundung.
Verkäufer: 2,38 % Verkäuferprovision vom notariell beurkundeten Kaufpreis inkl. gesetzl. MwSt., verdient und fällig mit notarieller Beurkundung.
Die verwendeten Fotos sind urheberrechtlich geschützt und dürfen nicht kopiert werden.
Mehr anzeigen zum Thema Sonstige Angaben Energieausweis
A+
< 30
A
30 – 50
B
50 – 75
C
75 – 100
D
100 – 130
E
130 – 160
F
160 – 200
G
200 – 250
H
> 250
- Nutzungsart
- Wohnen
- Baujahr lt. Energieausweis
- 2010
- Endenergieverbrauch
- 72,6 kWh/(m²a)
- Energieausweis
- Verbrauchsausweis
- Energieausweis gültig bis
- 30.01.2026
- Energieeffizienzklasse
- B
- wesentlicher Energieträger
- Erdgas leicht
Ihre Ansprechpartnerin
Frau Frauke Faß (Dipl.-Kffr.)
Immobilien Frauke Faß
- Tel.:
- 0495282379
- E-Mail:
- info@immo-ostfriesland.de
Schulstraße 131
26842 Ostrhauderfehn